Piso en alquiler en Cuesta de Santo Domingo 20, Madrid

Galería fotos
€ 1.300
Referencia: CSD20
  • Tipo: Pisos
  • Operación Alquiler
  • Localización Municipio: Madrid
  • Localización Población:Madrid
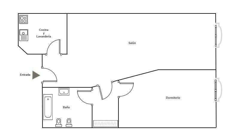
  • Habitaciones Habitaciones: 2
  • Baños Baños: 1
  • Terraza Terraza:
  • Planta Planta:
  • Metros construidos Metros: 68m2
  • Año de construcción Año de construcción: 1980

Características

  • Aire acondicionado: no
  • Orientación: Sur::Este
  • Estado: Disponible

Detalles

¡Vive en pleno centro de Madrid con toda la luz y comodidad! ¿Te gustaría disfrutar cada día del maravilloso centro de Madrid? Ir al cine, asistir a la ópera en el prestigioso Teatro Real o tomar algo en una de las increíbles azoteas? Ahora puedes hacerlo realidad. Se alquila acogedor piso en pleno centro de Madrid, ideal para quienes buscan ubicación, funcionalidad y calidad de vida en una de las zonas más dinámicas de la ciudad. La vivienda dispone de 1 dormitorio y un salón independiente que puede utilizarse como segunda habitación, ofreciendo gran versatilidad. Cuenta con dos luminosos balcones que aportan abundante luz natural y unas espectaculares vistas de Plaza Santo Domingo y hacia Gran Vía. Dispone de un baño completo, armario empotrado y cocina independiente y equipada con electrodomésticos. Además, cuenta con calefacción central y servicio de portero físico, lo que aporta un extra de confort y seguridad. Existe la opción de alquilar plaza de garaje en el mismo edificio. Ubicado en una zona privilegiada, a escasos minutos andando de Plaza de Callao, junto a Gran Vía y muy cerca de la Puerta del Sol, La plaza Isabel II (Opera) a pocos minutos de Plaza España, rodeado de todo tipo de servicios: comercios, centro comercial El Corte Ingles, restaurantes, azoteas, cines, transporte público y zonas de ocio, con excelente comunicación. Cuenta además con excelentes conexiones de transporte público, con las estaciones de metro de Santo Domingo (L2), Callao (L3 y L5), Ópera (L2) y Sol L1, L2 y L3, así como Cercanías Renfe a pocos minutos, y con muy fácil acceso a la M-30. Ideal para profesionales, parejas o personas que quieran disfrutar del centro con todas las comodidades. ¡Tu hogar en el corazón de Madrid! Aprovecha esta oportunidad de vivir en una de las mejores zonas de la capital. ¡Contacta para más información o concertar una visita!