SOLAR para continuar la construcción de tu propia casa o finca

Galería fotos
€ 60.000
Referencia: LUCIA-103-2

Características

  • Aire acondicionado: no
  • Estado: Disponible

Detalles

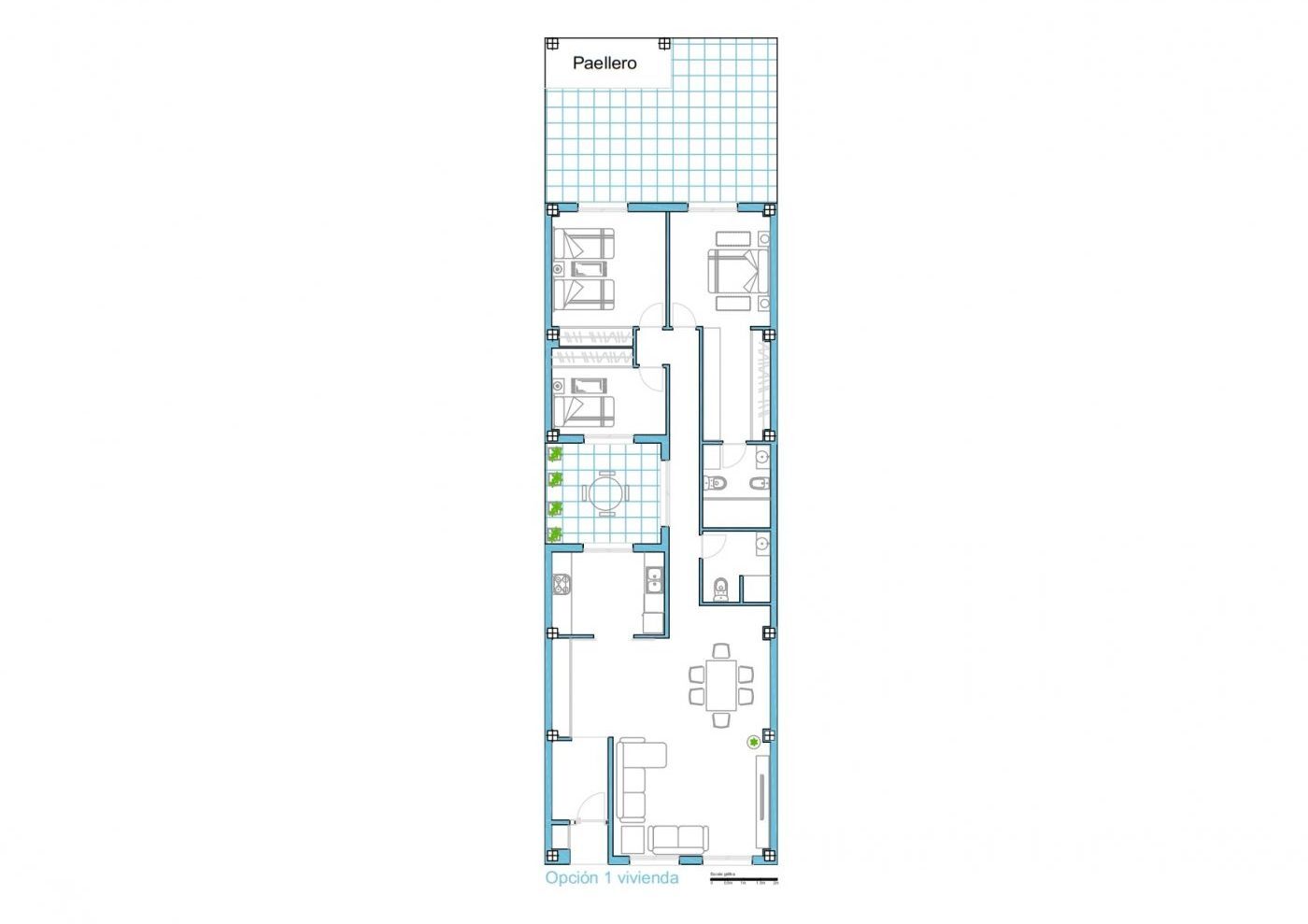
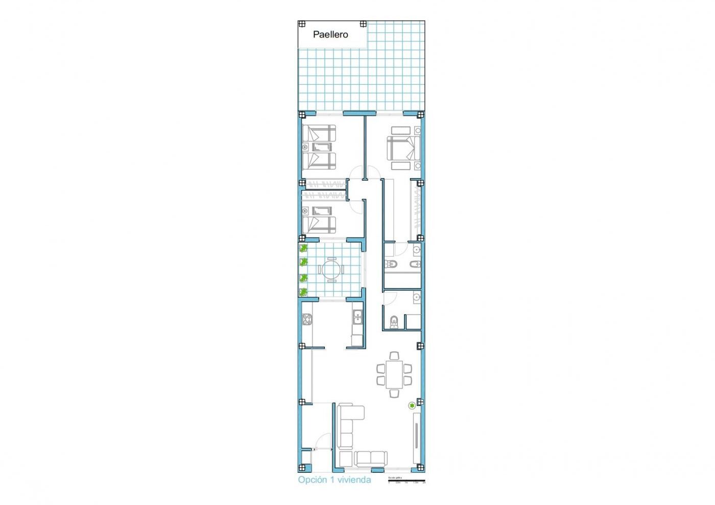
Se pone a la venta en exclusiva y SIN PAGAR HONORARIOS DE INMOBILIARIA este solar urbano con la cimentación y parte de la estructura ya hecha para edificar, totalmente rectangular de 7m de fachada y 175m2 totales de superficie en planta para que puedas construir tanto tu propia finca familiar de 3 plantas con un total de 345m2 edificables o bien como inversión para realizar una promoción para su venta de 3 viviendas. El solar dispone de todos los servicios a pie de parcela, cimentación y solera y pilares de planta baja ya ejecutados con las esperas para continuar con la construcción. El precio es negociable y la propiedad está ABIERTA A ESCUCHAR OFERTAS...así que no dejes pasar la oportunidad de poder diseñar tu casa a tu gusto e incluso plantearte hacer una vivienda por planta para vivir con toda tu familia en distintas plantas, pero, como se suele decir, juntos para lo que necesitéis, pero no revueltos, junto a tus seres más queridos. Se ubica en una calle tranquila en la zona del barrio de la Magdalena de Massamagrell. Muy bien comunicado con la CV-32, y tan sólo a 26 minutos en coche del centro de Valencia capital y a 14 minutos de la playa de La Pobla de Farnals. Además, no importa que sea verano o invierno para disfrutar de una preciosa casa que puedes construir con un patio interior privado con tus flores y plantas para estar en el pueblo, pero al aire libre y con la naturaleza. La descripción del presente inmueble, así como los planos adjuntos, tiene mero carácter informativo y en ningún caso carácter contractual. Por mandato expreso del propietario, comercializamos este inmueble en exclusiva, lo que le garantiza un servicio de calidad, un trato fácil, un proceso sencillo, rápido y sin interferencias de terceros. Por este motivo, se ruega no molestar al propietario, a los ocupantes de la propiedad, a los vecinos o conserjes del edificio o urbanización si los hubiera. Muchas gracias por su comprensión. Si Usted es agencia inmobiliaria y tiene un cliente para este inmueble, llámenos, estaremos encantados de colaborar en esta y otras operaciones.