Propiedad en venta en Valladolid, Traspinedo

Galería fotos
€ 79.900
Referencia: 3025-15052
  • Tipo: Casas o chalets
  • Operación Venta
  • Localización Municipio: Traspinedo
  • Localización Población:Traspinedo
  • Habitaciones Habitaciones: 2
  • Baños Baños: 1
  • Terraza Terraza:
  • Piscina Piscina:
  • Planta Planta:
  • Metros construidos Metros: 205m2
  • Año de construcción Año de construcción: 2001

Características

  • Aire acondicionado: no
  • Gastos comunidad: 35 €/Mes
  • Estado: Disponible

Detalles

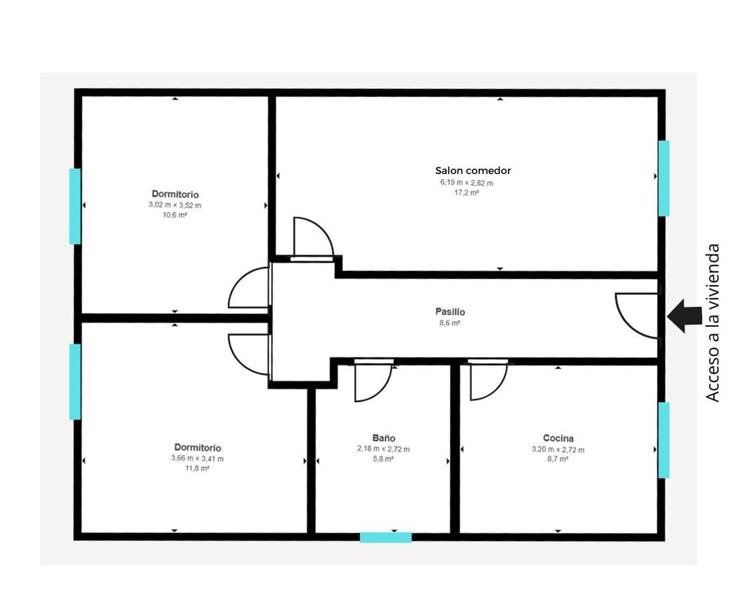
Remax Pisuerga vendiendo inmuebles desde 1998 en Valladolid. ¡Oportunidad única en Traspinedo! Casa para reformar en la Urbanización El Romeral Descubre esta encantadora casa en un entorno rural, ideal para quienes buscan un proyecto de reforma. Con una parcela de 659 m², 205 m² construidos y 135 m² útiles distribuidos en dos plantas, esta propiedad ofrece un gran potencial. Características de la vivienda: - La vivienda esta en terreno Rustico, esta escriturada tanto la edificacion como la parcela, ambos pagan ibi al ayuntamiento de Traspinedo. - Primera planta: Ático abuhardillado con una altura mínima de 60 cm. y maxima de 165 cm - Garaje y trastero: 24 m² cada uno, perfectos para almacenamiento. - Planta baja: Un pasillo distribuidor que da acceso a la cocina y al baño a la izquierda, y al salón-comedor a la derecha. Al fondo, encontrarás dos habitaciones, una de ellas con espacio para un armario empotrado. - Acceso a la buhardilla: Se puede acceder desde una escalera exterior, con la opción de instalar una escalera de caracol para un acceso interior. -La vivienda no dispone de calefacción. Ubicación: Situada en Traspinedo, un pintoresco pueblo de Valladolid con solo 175 habitantes, a tan solo 20 minutos de la ciudad de Valladolid por la autovía de Soria. El pueblo cuenta con todos los servicios necesarios: Ayuntamiento, colegio, farmacia, polideportivo, biblioteca, centro cívico, centro de día, frontón, gimnasio, guarderías, plaza de toros, residencia de ancianos y parques. Además, dispone de servicio regional de autobuses con dos salidas diarias. ¡No pierdas esta oportunidad! Solicita información sin compromiso a nuestro comercial y comienza a hacer realidad tu proyecto de hogar. ?RE/MAX Finance a través de convenios nacionales con las principales entidades bancarias permite que nuestros clientes disfruten de mejores condiciones de financiación del mercado, y además, con la fórmula COMPRA+REFORMA tenemos la posibilidad de sumar los costes de la reforma de la vivienda a la hipoteca de compra. Solicita información sin compromiso al comercial. NOTA: Este anuncio no es vinculante, puede contener errores, se muestra a título informativo y no contractual. El texto que se ofrece, junto con fotos y croquis del inmueble, está destinando a su uso como instrumento informativo. No tiene validez jurídica ninguna. gan ibi al ayuntamiento de Tras.