- Tipo: Pisos
- Operación Venta
-
Municipio: El Bonillo
-
Población:El Bonillo
-
Habitaciones: 5
-
Baños: 5
-
Trastero: Sí
-
Terraza: Sí
-
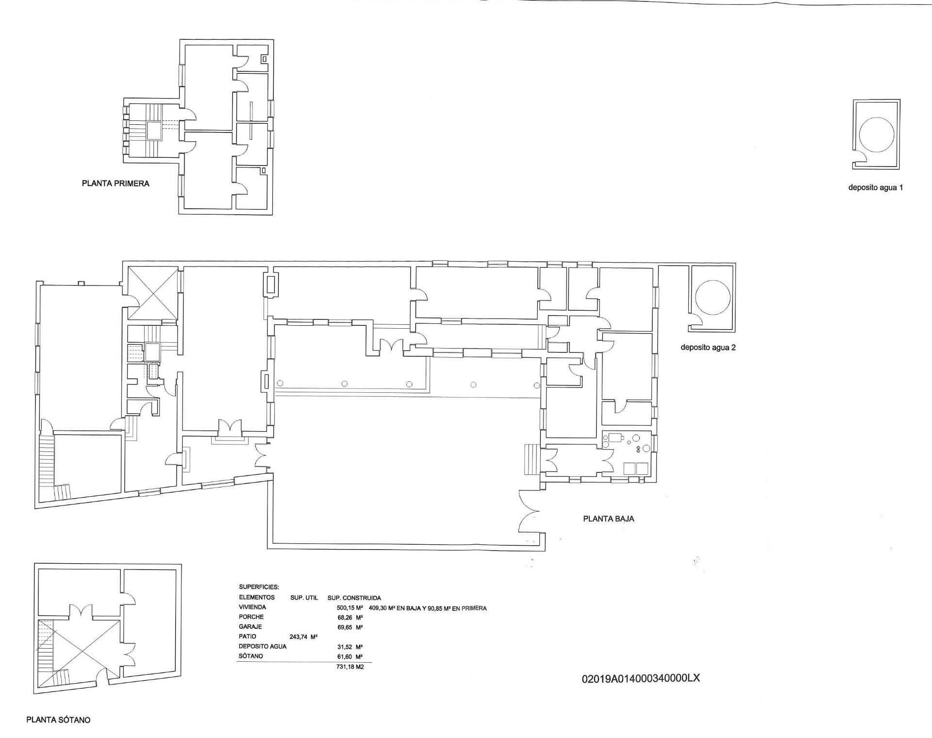
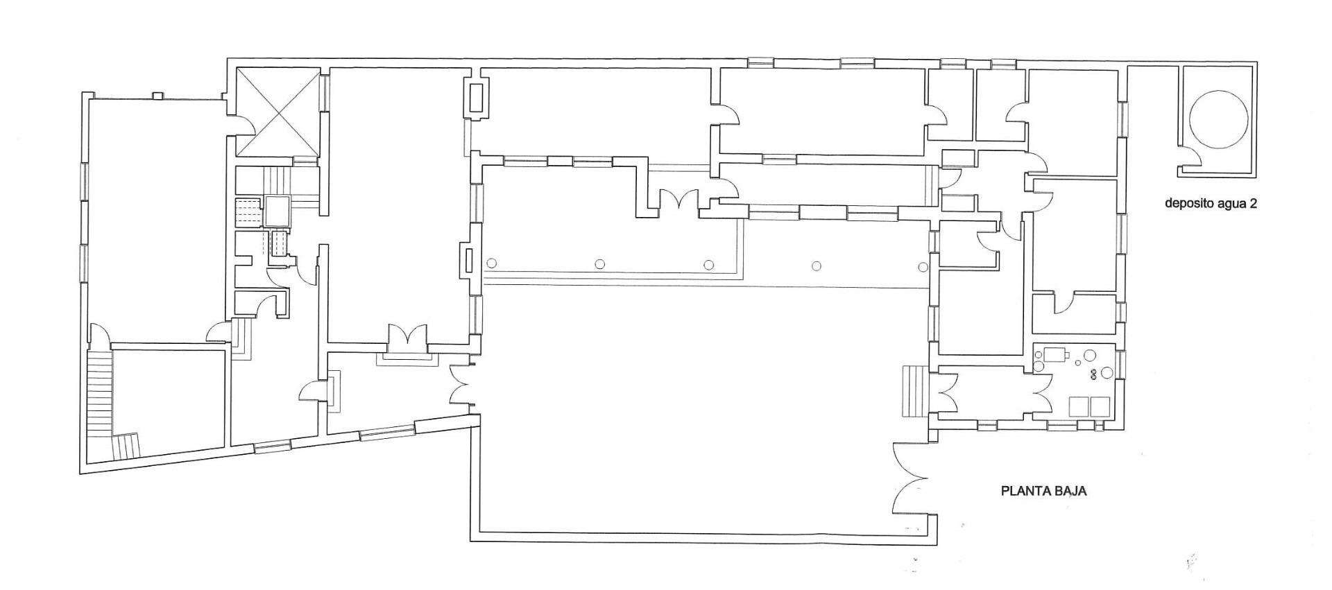
Metros: 727m2
-
Metros parcela: 34225m2
-
Metros terraza: 68m2
-
Año de construcción: 1880
Características
- Aire acondicionado: no
- Estado: Disponible
Detalles
Se vende en exclusiva esta espectacular finca de 34.225m2 de terreno de encinar y monte con gran masía enclavada en el Coto de caza de Sotuelamos y SIN PAGAR HONORARIOS A LA INMOBILIARIA¡¡¡ Si eres inversor te interesará saber las muchas posibilidades turísticas. Ponte en contacto con nosotros y nuestro equipo de arquitectos te asesorará gustosamente. Esta propiedad se situa en un entorno tranquilo y de lujo para disfrutar también de la caza por ojeo de la perdiz roja autóctona española. La finca se ubica en Sotuelamos, una pedanía de El Bonillo, Albacete ?en el punto medio entre Madrid, Valencia y Murcia. Y entre la N-430 y el rio de Sotuelamos, una zona frondosa que te recibe gratamente al subir a la popiedad conformando una montañita de 34.225m2 de encinares y donde en su centro se enclava esta fabulosa masía de 727m2 construidos distribuidos en tres niveles donde casi toda la propiedad está en planta baja. El acceso principal se realiza a través de un gran patio de 244m2 y un porche de 68m2 en la fachada sur que abraza el salón comedor y la galería que te comunica con las tres habitaciones dobles con baño en suite de esta planta. El portón de entrada te conduce a través de un amplio hall a la zona de servicio y al monumental salón de 68m2 con dos chimeneas que se comunica con el espectacular comedor con chimenea y su mesa para 16 comensales que toma protagonismo junto a la luz que entra a raudales por toda la casa. A continuación, la amplísima cocina office de 36 m2 parece nueva y cuenta con una zona de despensa al fondo donde se ubican también las 3 neveras y el fregadero industrial. A continuación del salón una escalera en una torre te lleva a dos amplias suites con baño completo y vestidor de 95m2 en total?has llegado al paraíso¡¡ La belleza de la casa y su entorno natural manchego te sorprenderán así que no lo dudes y LLAME YA¡¡ NO DEJE PASAR ESTA OPORTUNIDAD¡¡. Si lo deseas podemos hacer visita en remoto. Garaje privado y cerrado de 70m2 para varios vehículo. Llámanos y te informaremos de los múltiples detalles adicionales y características que acabaran de enamorarte.