Propiedad en venta en Almería, Cuevas del Almanzora

Galería fotos
€ 96.000
Referencia: 3243-05348
  • Tipo: Pisos
  • Operación Venta
  • Localización Municipio: Cuevas de Almanzora
  • Localización Población:Cuevas del Almanzora
  • Habitaciones Habitaciones: 2
  • Baños Baños: 1
  • Trastero Trastero:
  • Terraza Terraza:
  • Piscina Piscina:
  • Ascensor Ascensor:
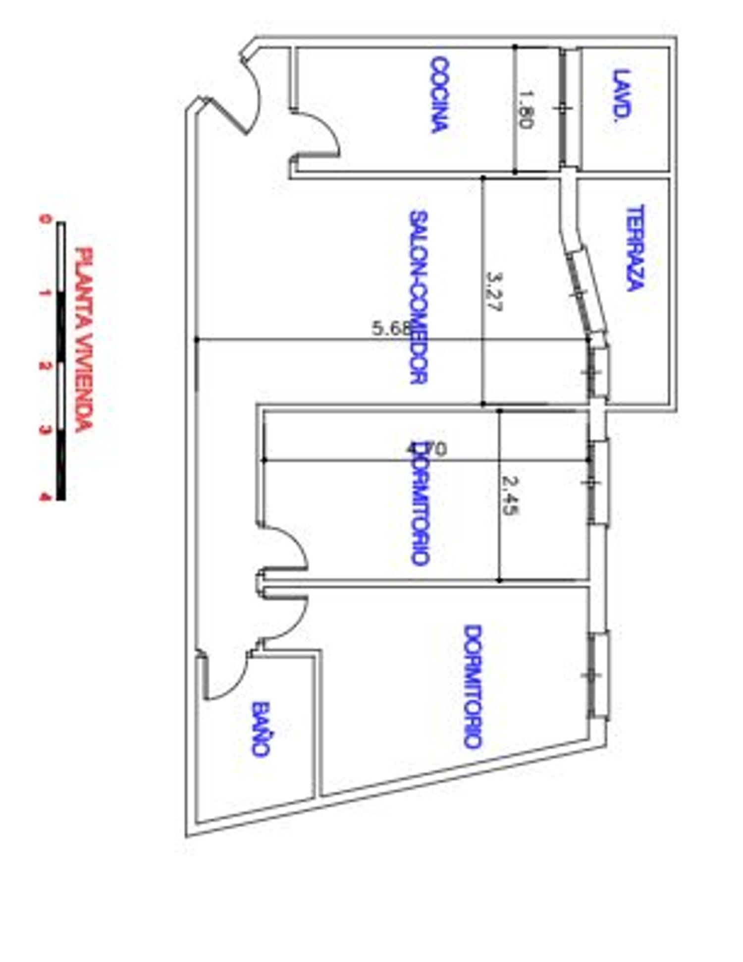
  • Metros construidos Metros: 77m2
  • Año de construcción Año de construcción: 2007

Características

  • Aire acondicionado: no
  • Gastos comunidad: 57 €/Mes
  • Estado: Disponible

Detalles

¡Descubre tu nuevo hogar en Cuevas del Almanzora! Este espectacular piso de 2 dormitorios es la oportunidad perfecta para disfrutar de la vida en una de las mejores zonas de expansión de la ciudad. Con 77 m² construidos y 63 m² útiles, este acogedor espacio se encuentra en la primera planta de un edificio totalmente renovado, que cuenta con ascensor y un cuidado excepcional. Imagina relajarte en tu nuevo hogar, con armarios empotrados que ofrecen un amplio espacio de almacenamiento y un trastero de más de 6 m² para tus pertenencias. Además, tendrás la comodidad de una plaza de parking subterránea, lo que facilitará tus desplazamientos. La ubicación es inmejorable, cercana a la Notaría y al Edificio de Usos Múltiples, así como a diversas zonas recreativas y deportivas. No dejes pasar esta oportunidad única. El edificio fue construido en 2007 y se encuentra en buen estado, listo para que lo personalices a tu gusto. Aunque no dispone de calefacción, su orientación este garantiza luminosidad y calidez durante el día. Además, podrás disfrutar de una refrescante piscina en los días calurosos. ¡Ven a visitarlo y empieza a imaginar tu nueva vida aquí! Precio Actual 96.000? + Impuestos = 102.720? (7% ITP). Este precio no incluye gastos de Notaría y Registrales. Los tipos aplicados son los más altos, pudiendo el comprador, por sus características, beneficiarse de algunas deducciones fiscales. Tiene disponible en nuestra oficina y el D. I. A. de la vivienda.