€ 600.000
Referencia:
4247-00180
- Tipo: Fincas y solares
- Operación Venta
-
Municipio: La Antigua
-
Población:Antigua
-
Terraza: Sí
-
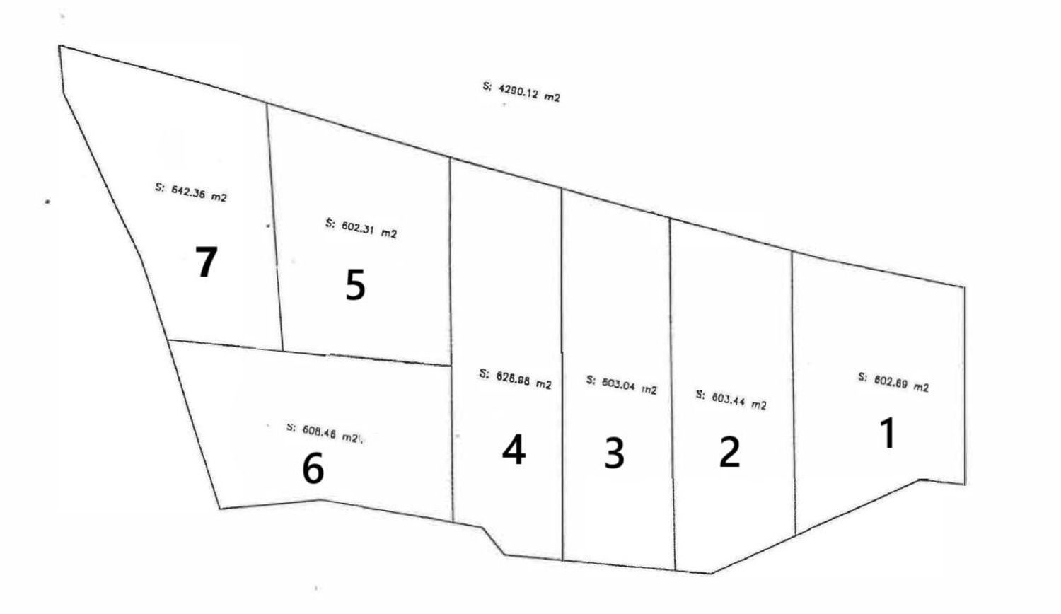
Metros parcela: 4453m2
-
Año de construcción:
Características
- Aire acondicionado: no
- Estado: Disponible
Detalles
Se vende conjunto de 7 parcelas en asentamiento rural en Casillas de Morales, Antigua, Las Palmas. Todas las parcelas cuentan con una superficie superior a 600m2 aptas para la edificación de viviendas unifamiliar de más de 150m2. En una ubicación privilegiada a menos de 5Km del núcleo de Antigua. No lo dudes, solicita más información y agenda tu visita. IMPORTANTE: Los datos expuestos son meramente orientativos y están sujetos a errores u omisiones involuntarios. Los gastos de compra/venta no están incluidos en el precio de venta y se aplicarán según ley.