Propiedad en venta en Pontevedra, Vigo

Galería fotos
€ 525.000
Referencia: 3291-09914
  • Tipo: Pisos
  • Operación Venta
  • Localización Municipio: Vigo
  • Localización Población:Vigo
  • Habitaciones Habitaciones: 6
  • Baños Baños: 3
  • Terraza Terraza:
  • Ascensor Ascensor:
  • Metros construidos Metros: 253m2
  • Año de construcción Año de construcción: 1972

Características

  • Aire acondicionado: no
  • Gastos comunidad: 100 €/Mes
  • Estado: Disponible

Detalles

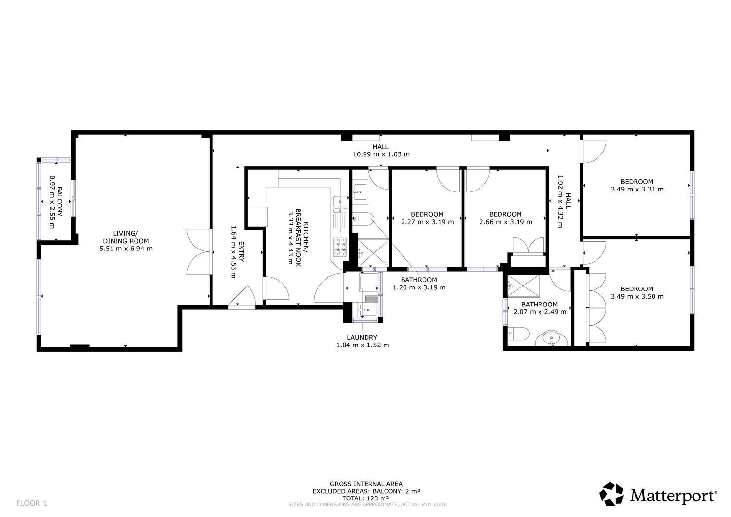
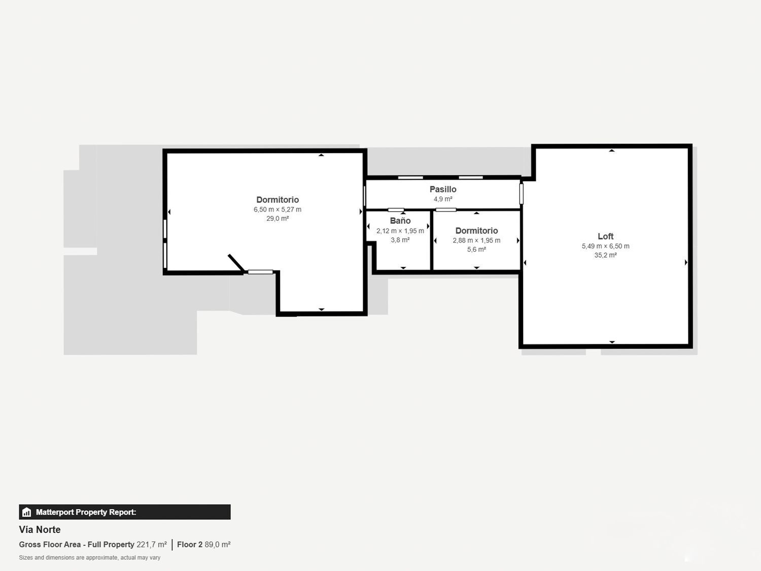
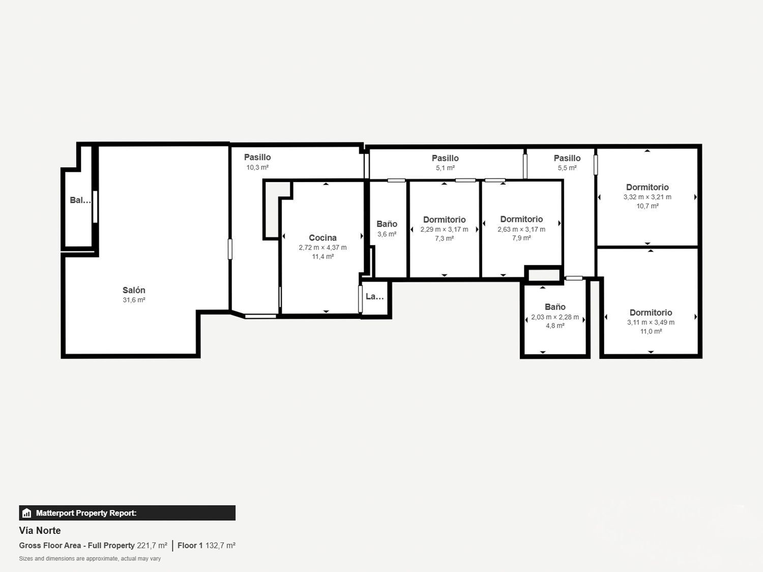
EXCLUSIVO piso en VÍA NORTE. POSIBILIDAD DE DOS VIVIENDAS INDEPENDIENTES FABULOSAS vistas a la ria, TERRAZA y GARAJE Justo enfrente de la nueva estación de tren y CENTRO COMERCIAL VIALIA, con parada de autobús y de taxis enfrente del portal. Se trata de una amplia novena planta de 126 m2 lista para entrar a vivir. Y a mayores el ático justo encima, del mismo tamaño, con fantástica terraza descubierta con impresionantes vistas directas al mar. El piso 9° cuenta con 4 habitaciones, (dos con armarios empotrados), un luminoso salón con balcón y fantásticas vistas directas al mar, amplia cocina independiente, equipada y amueblada, con su zona de lavadero y dos cuartos de baños completos con plato de ducha. El ático nada más acceder cuenta con una zona de estar con salida a terraza con maravillosas vistas panorámicas de Vigo y su fabulosa ria, al que se le podria incorporar una cocina estilo americana, ya que dispone de conexiones, un cuarto de baño con una pequeña bañera, un dormitorio pequeño y una espaciosa estancia trasera con pequeñas ventanas al exterior. Tiene capacidad y un gran potecial para convertirlo en moderno LOFT o APARTAMENTO con TERRAZA Tambien cabe la posibilidad de comunicar ambas viviendas con escaleras interiores y crear un impresionante DÚPLEX al gusto de sus necesidades. El precio incluye una buena plaza de garaje en el mismo edificio, a la cual se accede saliendo por el portal, El edificio ha sido totalmente renovado y tiene un moderno portal nuevo. Una de las zonas con mayor demanda, que cuenta con todos los servicios necesarios para el día a día, gracias a su proximidad al centro de Vigo y al mayor centro comercial VIALIA, con la nueva estación de tren, parada de taxis, supermercado, parque infantil, etc. No dude en contactar para más información o visitar. RE/MAX FINANCE A través de convenios nacionales con las principales entidades bancarias permite que nuestros clientes disfruten de las mejores opciones de financiación del mercado, con condiciones especiales y ventajosas, recibiendo un trato "prime" que nos diferencia". Nota: este anuncio es meramente informativo y carece de valor contractual, puede contener algún error involuntario.