Edificio en venta en Arxiduc - Palma de Mallorca

Galería fotos
€ 1.390.000
Referencia: 101FA1220
  • Tipo: Casas o chalets
  • Operación Venta
  • Localización Municipio: Palma de Mallorca
  • Localización Población:Palma de Mallorca
  • Habitaciones Habitaciones: 6
  • Baños Baños: 3
  • Terraza Terraza:
  • Metros construidos Metros: 488m2
  • Parcela Metros parcela: 223m2
  • Año de construcción Año de construcción: 1950

Características

  • Aire acondicionado: no
  • Orientación: Sur::Este
  • Estado: Disponible

Detalles

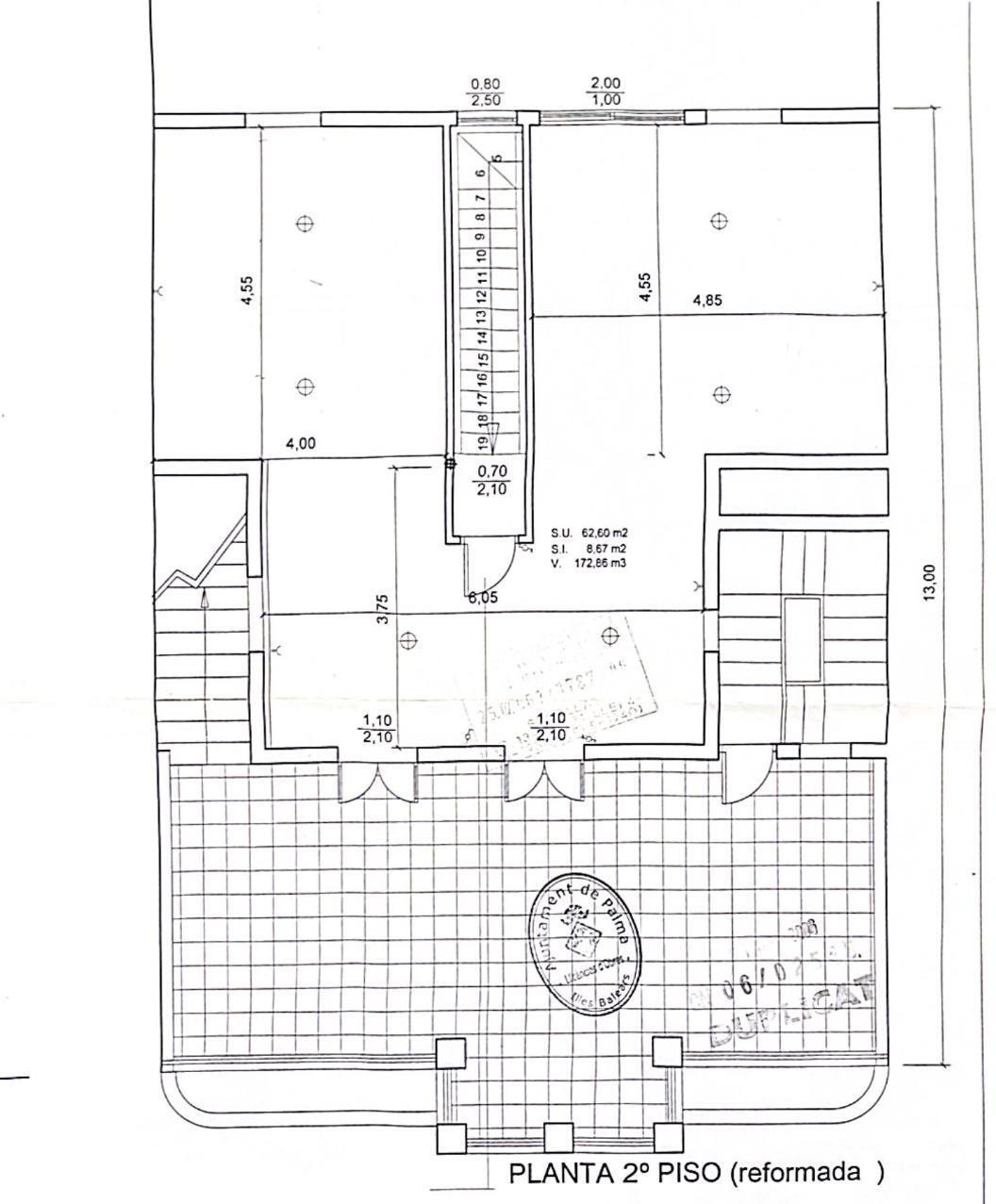
Oportunidad única en una de las zonas más demandadas de Palma. Se vende edificio / vivienda unifamiliar de 3 plantas, con múltiples posibilidades de uso y opción legal de ampliar una planta más. Actualmente el inmueble combina uso comercial y residencial, con accesos independientes y una distribución versátil que permite tanto su uso como gran vivienda unifamiliar, dos viviendas independientes, o proyecto inmobiliario de alta rentabilidad. Distribución actual * Planta baja (200 m²). Espacio totalmente diáfano. Uso comercial. Ideal para local, cambio a plazas de parking o transformación en viviendas (según proyecto). * Primera planta ? 3 habitaciones dobles, 1 habitación individual, 2 baños completos, Recibidor, Varios salones, Cocina-comedor. Calefacción por chimenea y radiadores. Amplia terraza trasera * Segunda planta ? 2 habitaciones dobles, 1 baño completo, salón-comedor, cocina integrada, terraza en planta, terraza superior. Las dos viviendas cuentan con accesos independientes mediante escalera exterior, y además están conectadas por una escalera interior, permitiendo utilizarlas de forma separada o conjunta. Posibilidad legal de construir una planta adicional (hasta 4 plantas en total). Ideal para inversores que busquen: - Construcción de un nuevo edificio de viviendas - Aprovechar la planta baja como parking y desarrollar 3 plantas residenciales - Proyecto de varias viviendas para maximizar rentabilidad Situado en zona Arxiduc, barrio consolidado y muy bien comunicado, cercano a servicios, transporte público, comercios y a pocos minutos del centro de Palma. Una propiedad con múltiples opciones: vivir, invertir o desarrollar. Ideal tanto para familias que busquen amplitud como para promotores e inversores. El precio de venta publicado no incluye los gastos derivados de la compraventa, tales como el Impuesto de Transmisiones Patrimoniales (ITP) o IVA, gastos notariales, registrales ni otros gastos que legalmente correspondan al comprador.