Local para inversión con salida de humos autorizada

Galería fotos
€ 75.000
Referencia: 3009_026989
  • Tipo: Negocios
  • Operación Venta
  • Localización Municipio: Elche
  • Localización Población:Elche
  • Baños Baños: 1
  • Terraza Terraza:
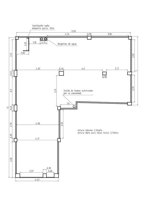
  • Metros construidos Metros: 133m2
  • Parcela Metros parcela: 133m2
  • Año de construcción Año de construcción: 1969

Características

  • Aire acondicionado: no
  • Orientación: Oeste
  • Estado: Disponible

Detalles

Se trata de un espacio versátil y con muchísimo potencial, ideal tanto para inversores como para emprendedores que busquen iniciar un nuevo proyecto. El gran valor añadido de esta propiedad es que cuenta con autorización expresa y por escrito de la comunidad de vecinos para instalar una salida de humos, lo que lo hace perfecto para negocios de hostelería (restaurantes, cafeterías, panaderías, dark kitchens, etc.). O para cambio de uso HABITABLE. Cuenta con los servicios conectados de Luz y Agua. Características principales: Superficie: 125 m² construidos según Catastro, con una distribución en forma de "L" que permite diferenciar distintas áreas de trabajo o atención al público. Altura: Excelente altura máxima de 2,94 metros, dejando una altura libre de 2,72 metros si se desea instalar un falso techo. Instalaciones: Cuenta con un aseo básico con ventilación propia, cuadro eléctrico actualizado con enchufes de tipo industrial e identificación de las bajantes de agua del edificio. Fachada y Acceso: Entrada directa desde la calle protegida con persiana metálica enrollable de seguridad y puertas interiores de carpintería. Estado: El local (año de construcción 1969) se encuentra a reformar, lo que supone un lienzo en blanco para diseñarlo y adaptarlo exactamente a las necesidades y estética de tu futuro negocio. No dejes pasar esta oportunidad de establecer tu negocio en un local con la codiciada licencia comunitaria de extracción de humos. ¡Contacta para más información o para concertar una visita! Los honorarios de gestión inmobiliaria no están incluidos en el valor. Las imágenes de posibles diseños son orientativas.